美式豪宅,宅在你想不到的豪华生活里

英格兰乡愁:格兰瑟宅邸

格兰瑟夫妇的宅邸坐落在美国纽约州罗切斯特市的近郊。基地为始建于1900年的城市住宅区内的一片大地块。



花园的设计理念注重与住宅的建筑风格相统一。花园里,原先的植物生长得过于茂盛,除了草坪连花坛都没有。业主希望修建后的花园能与他们在欧洲见过的花园相似,同时能够为他们的四个幼年孩子及朋友提供一个休闲娱乐场所。设计理念包括移除长势过猛的树木,腾出的这一开放空地用于营建布局更为整齐的户外花园。


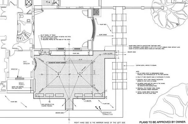
砖块铺设的大型平台设置了座椅和户外餐桌设施,平台边缘摆放了石灰石种植槽,应季栽种了各种色彩丰富、茎叶茂盛的植物。小径连接了平台和“大草坪”,拱廊布满了攀援植物,两边栽种了芳香的多年生植物。低矮的黄杨树篱围合着其内的平台和布局整齐的花园。这一景致的末端摆放了一个大型的石灰石花坛,其底座设有长凳座椅。



花坛周围是一个芳草园,供业主烹饪之用。住宅一侧,毗邻主卧一处被抬升的平台,设计师建造了又一个布局整齐的花园,栽种了玫瑰和牡丹,并以黄杨树篱围合,还从街道移植了一排成龄的柱状阔叶树。“大草坪”原址生长着过于茂盛的大树,设计师将其移除后铺设了草皮。草坪边缘的一侧营建了“林地边境”,由树木、灌木和遮阴多年生植物组成,其间的一些园景树和灌木赋予此地以丰富的色彩和与众不同之感


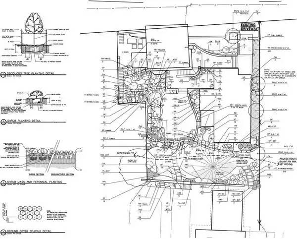
住宅前门设计了访客的车行通道,半圆形空地用于停车。布局整齐的植物配置体现在修剪为金字塔形状的黄杨树篱围合着其内色彩丰富的多年生和两年生植物。柱状阔叶树在住宅前门排成一排,掩映着通往车库和花园的入口。
归田园居:两河住宅

住宅的位于一个草坪上, 是怀俄明Gros Ventre和蛇河交汇处约14.2公顷地块中的一部分,过去这里曾是放养牛的牧场。尽管地块已遭到过去放牧活动的破坏,但是由于靠近河流拥有滨水长廊,拥有丰富的野生动植物和自然资源。



项目规划的一开始客户就表达了想要一个“低调、舒适和简单”的设计想法,当然还要是典型的西部景观。客户希望项目的设计能够充分考量环境的敏感性,建筑能与自然和谐共存,而不是挑战现有自然景致的姿态。也就是说,住宅与景观都要能够与周边环境、山谷,或是更广阔的西部风情融合于一体。


当踏入这块地块时,设计师能感受到一种灵性,随着讨论的深入,这种灵性越发明显。因此,设计师所面临的一个挑战就是如何让建筑也能够拥有同样的灵性,与此同时,还受到可用于建造住宅的面积十分有限,场地的环境的制约。考虑到场地内的地下水位非常高,设计师将住宅一层在现有斜坡面向上提升了约1.5米,有效缓解洪水泛滥带来的威胁,但是也带来了其他的问题,就是住宅如何与周边原有的地形协调相融。



为达到客户尊重西部区域特色的要求,建筑所使用过的一部分材料都是旧农场建筑的回收材料。在这个地块的中心,也就是在蒙大纳东部平原上发现了一个大约建于1890年的石头乳制品工厂厂房,设计师将它拆除后在原地重新进行了建设。建筑周边简朴的自然环境与平原相融,与东部住宅一起在共同反应出蒙大纳地区的典型风貌。植栽很巧妙地将奶油厂掩映其中,更将住宅的部分隐藏在内,从视觉上将场地与南部森林覆盖的山坡连接起来


岛居纽约:莱康德宅邸

莱康德夫妇的宅邸毗邻美国纽约州克莱顿小镇,坐落在卫斯理岛的一个小型社区,该岛是圣劳伦斯河千岛的一个岛屿。基地远远高于圣劳伦斯河,俯瞰着千岛。住宅与圣劳伦斯河之间有一条水路,还可步行到达千岛基金公园的私人社区。


项目包括七个平台:从车行通道、停车场一直向下延伸至圣劳伦斯河海道。三个硬质铺装的石质平台都由矮墙围合,并设有通往河流海道的人行台阶。三个平台连同最后一个由草坪和植床组成的平台,都设有种植池。



中央平台配有座椅区、露天烹饪设施以及置于蔓藤缠绕木质格架下的用餐区。座椅区周围的花园里,四季之景富于变幻、色彩丰富,其中切花园栽满了多年生植物,不仅在夏季呈现五彩缤纷的景象,还为室内的花卉装饰提供了资源。木质滨水平台设有座椅区,从这可到达船库和码头。



项目首要考虑的因素是行走在七个平台之间的安全性,同时还必须最大化地利用这些小区域,鼓励户外活动。因为常有友人和生意人拜访业主,所以户外空间的营建必须达到增进娱乐的目的。设计方案是基于对住宅和基地所处环境和气候的全方位考量而制定的。住宅原先的基地面积很小,只有约33米长、28米宽,且与周围住宅相邻甚近。虽然住宅所处的社区鼓励住宅之间应多建公共通道,但是本方案却旨在为业主营造一定的私密感


