海外精彩花园构造
1、这个花园具有典型的矩形后院,代表了独特的南部花园。该设计使用了正式和非正式花园风格,同时与一个中央反射池塘相连接。左边是带有山茱萸和浓密橡树的非正式风格,右边是带有长块草坪和中央雕塑的正式花园风格。

2、

3、

4、多层次的花槽,低梯田的墙壁,和郁郁葱葱的种植美化了这片户外居住区。阳台和温泉区被柏木树所覆盖,创造了一个远离主住宅的休闲场地。


6、这个天井的范围连同乔木和喷泉,为其它的普通的天井空间增添了趣味性的元素。座位墙环绕着该空间,使其更具亲密性和魅力度。多层次的喷泉也增添了精彩的视觉效果和声觉效果。

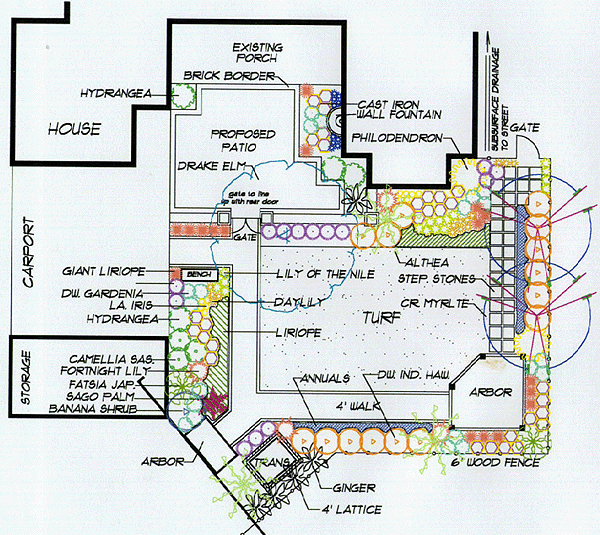
7、即使是一个小花园后方的空间也能具有区域类型的多样性。这个花园有一个砖砌的天井,座位墙,草坪空间和位于右下角的木制乔木。通过在边界两旁种植,所有这些形成了一个矩形草坪空间。


9、这个花园住宅考虑到了更为封闭的庭院感觉。前端宾客停车处被一道砖墙和华丽的铁门分割开来,该铁门通向花园种植区。大门是面向于让有限的景致进入花园空间,且风路减缓了通往前门的速度。

10、关于水池,隐私权是一个共同关心的话题。在这个设计里,水池区与数个植物材料层及小的开花树一同被掩护住。在水池的后部是一个带有露台的温泉区和木甲板,可用于遮阳及休息。
