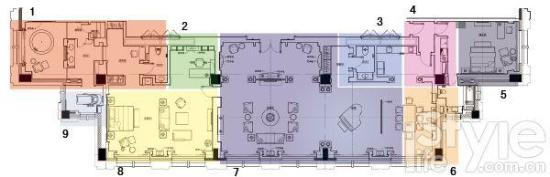
全球总统套房的配置
,请开门!
与身份相匹配,政要权贵和富豪们衣食住行都需要享受顶级的服务。对于出行来说,除了有私人飞机做交通工具,一套顶级的随身宅邸也是必不可少的。总统套房就像是当年贵族王侯的行宫,所有功能配置都不会因为出行而纡尊降贵。一间总统套房的功能配置,就是这间套房,乃至这个酒店级别的最好证明。

1 浴室
独立的淋浴间、蒸汽浴室、双人盥洗盆、双人洗漱台及至少可容纳双人的豪华按摩浴缸,并配有高科技平板液晶电视让主人尽享轻松悠闲的泡浴时光,是总统套房浴室最基本的需求。
2 书房
总统套房中的书房必不可少,主要用来供入住人员处理日常事务和书面性的文件等。以前的书房会倾向于古典,注重书架的摆放和书籍陈列,随着办公方式的变化,书房的功能也更现代和多元。
3 衣帽间
身份和功能总是相辅相成的,当总统套房不再是权力阶层的专属,一些明星和富豪也开始入住这种顶级套房。相对于政要来说,他们对套房中衣帽间的需求会更大。
4 厨房
对于有私人厨师提供服务的总统套房,厨房也是必须的。用来保证客人所享用食物的新鲜和安全。也方便按照各国贵宾的口味来调整安排膳食。
5 随从房
顾名思义,就是随从人员、安保人员居住、休息的房间。因为真正意义上的总统套房,其随从的级别也相当的高,所以其随从房也是豪华套房。好莱坞电影里的保镖房,就是随从房的一种。
6 夫人房
有些套房中称为夫人房,有些则会称为公主房,不论名称如何变化。这都是所有客房中最女性化的一间。所以衣帽间和浴室在这个客房的设计中很重要。有些夫人房是可以独立于总统套房之外的,通过联通门进行连接。
7 会客厅
会客厅是辅助功能区中最重要的一部分,承担公共交际功能。总统套房中的会客厅通常至少会有两个,一个较为正式用于公共交际,一个较为秘密用于休闲聊天。
8 总统房
总统房和夫人房是客房的主角。在设计上首先要考虑的是入住人员的安全、合理和舒适,所有的软硬设置都应该是围绕这三个条件展开的。
9 健身房
在如今的健康和保持身材的潮流趋势下,健身房开始变成豪华总统套房中一个重要的辅助功能区。对于长期入住的尊贵客人来说,会碍于身份不方便去公共区域健身运动。拥有一个私密的健身房就显得至关重要。